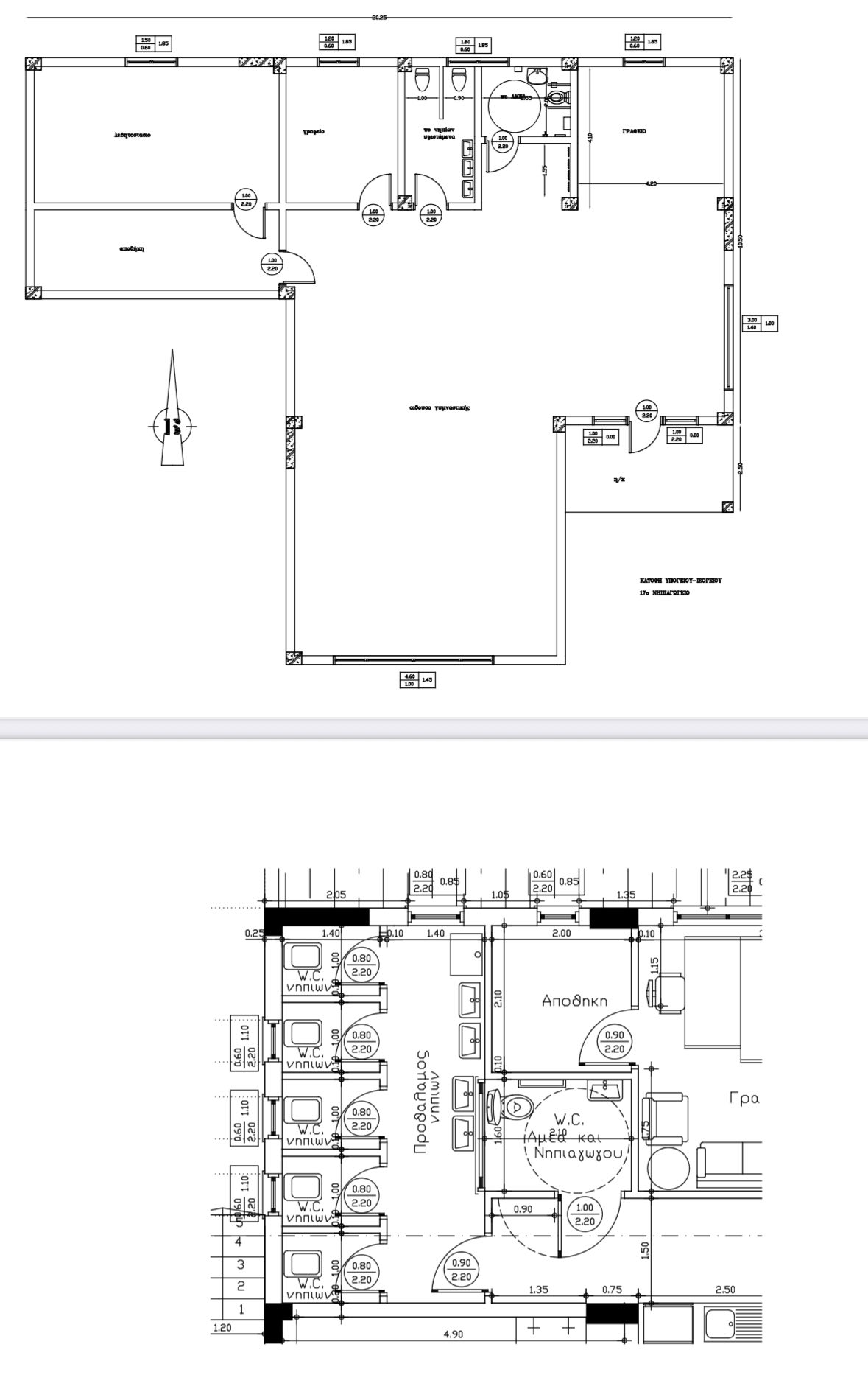
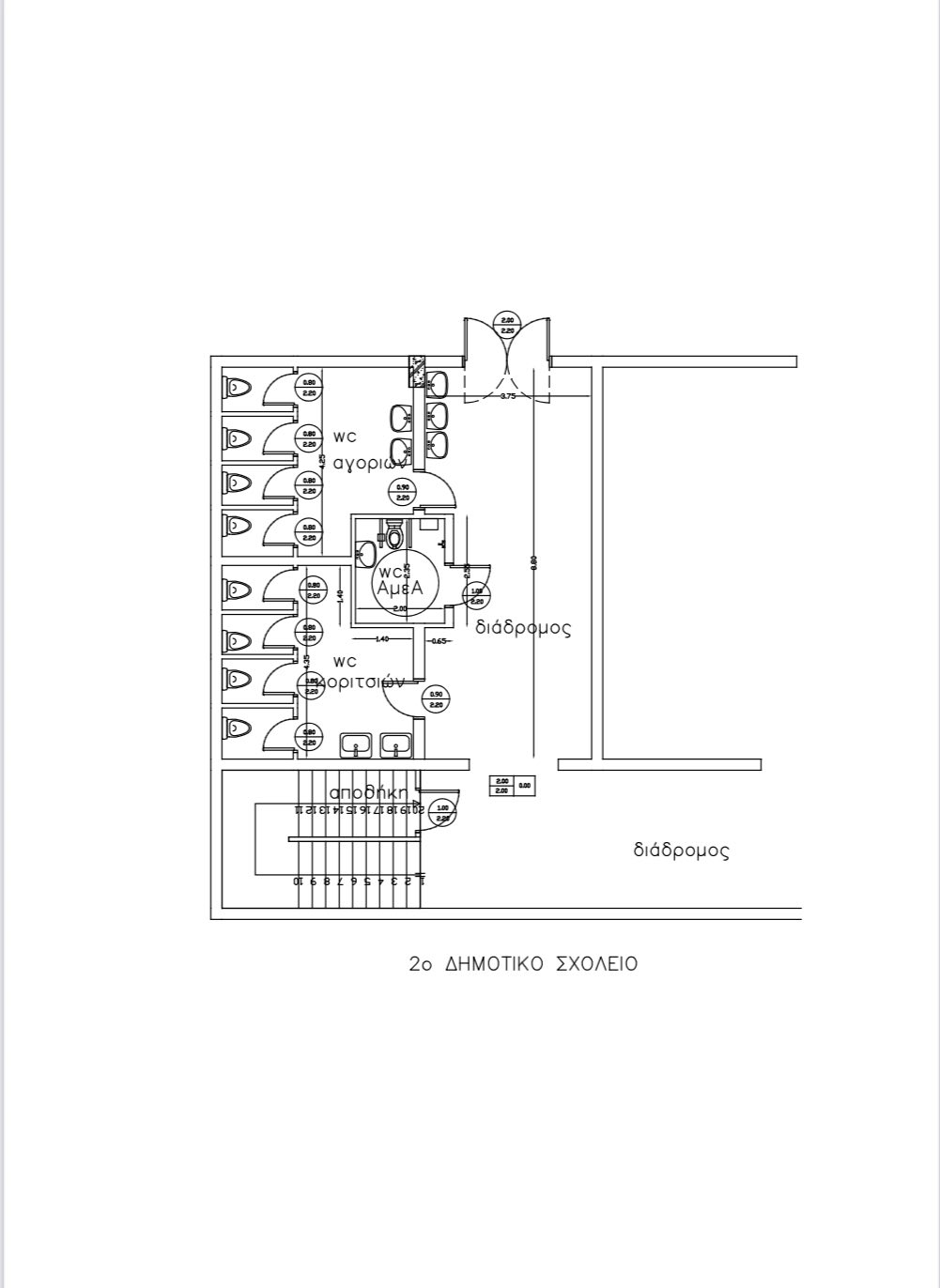
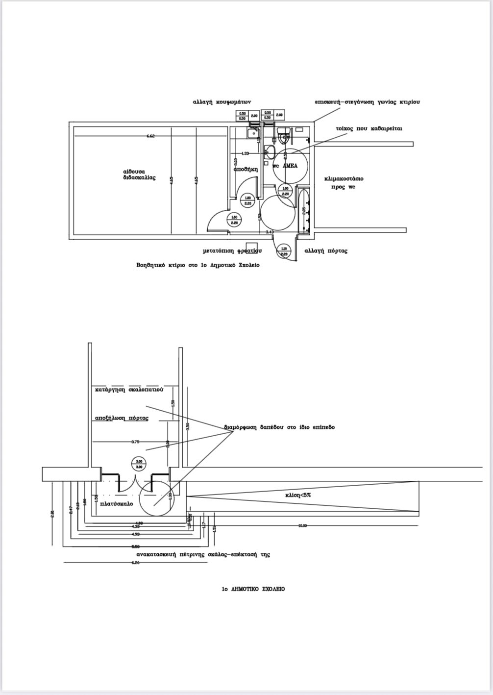
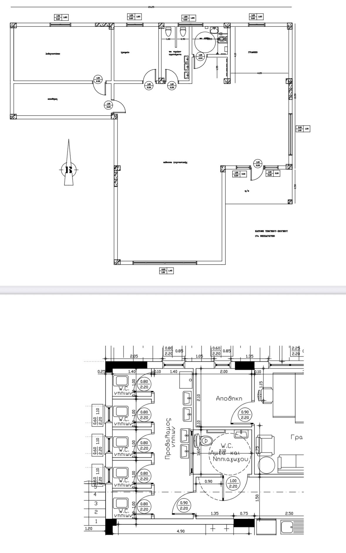
Εγκρίθηκε η Κατασκευή Ραμπών και WC ΑμεΑ σε Σχολεία του Δήμου Κοζάνης
Εγκρίθηκε η μελέτη για την κατασκευή ραμπών και WC ΑμεΑ σε σχολικές μονάδες του Δήμου Κοζάνης – προϋπολογισμός 435.000€. 26 WC.ΑμεΑ θα κατασκευαστούν σε νηπιαγωγεία, δημοτικά, γυμνάσια & λύκεια 17 Ράμπες πρόσβασης σε σχολεία όλων των βαθμίδων.
Μια σημαντική παρέμβαση που για πρώτη φορά υλοποιείται σε τέτοια έκταση, με ξεκάθαρη προτεραιότητα την προσβασιμότητα και την ισότιμη συμμετοχή όλων των μαθητών. Συνεχίζουμε με πράξεις!!!













